Falloden Way ,West Hempstead, London
Property Features
- No upper chain
- Off street parking
- Furnished or unfurnished
- Close to amenities and shops
- Newly renovated
- Natural light
Property Summary
Newly Renovated 4-Bedroom Duplex Apartment – Falloden Way, NW11
Rayan Investments are pleased to present this beautifully refurbished four-bedroom duplex apartment located in the sought-after area of NW11, Falloden Way.
Set over the second and third floors of the Market Place Block and spanning approximately 1,324 sq. ft., this spacious home offers a perfect blend of modern living and practical layout—ideal for families or as a smart investment opportunity.
The property features: Four bedrooms – including two generous master bedrooms and two well-sized standard rooms, all with fitted wardrobes and curtains. Three modern en-suite bathrooms, finished to a high standard. A bright and spacious reception room, perfect for entertaining or relaxing. A separate fully-fitted modern kitchen with access to a private balcony. Wooden flooring, large windows providing ample natural light, and carpeted stairs. Gas central heating throughout.
This duplex is offered fully furnished or unfurnished to suit your preference, and comes with the added benefits of: Off-street parking No upper chain Close proximity to local amenities and shops This property offers both a comfortable living environment and strong investment potential in a popular North West London location.
To arrange a viewing or for more information, please contact Rayan Investments today.
Full Details
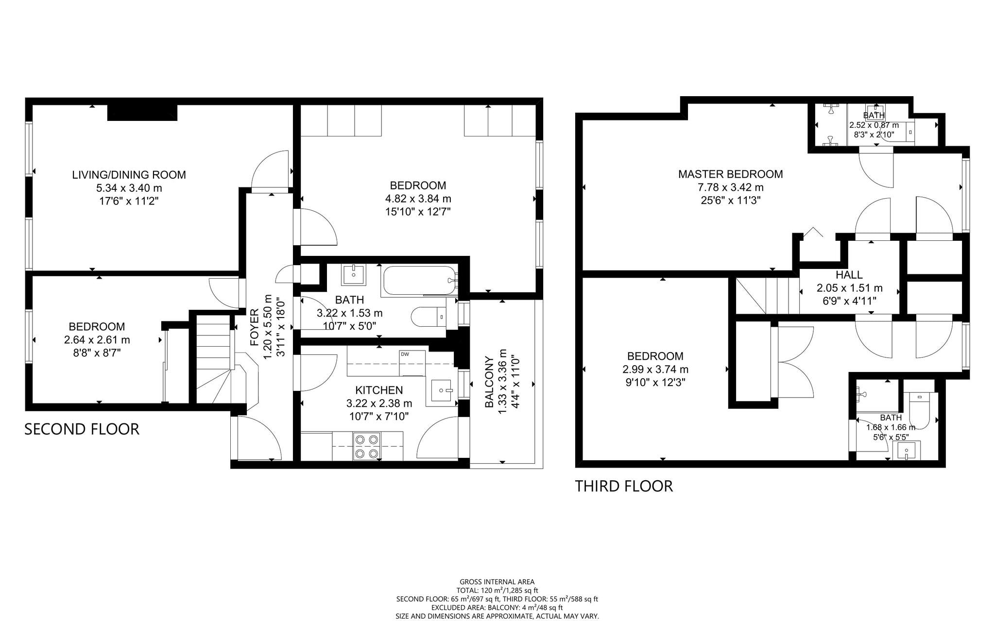
Second Floor
Living/Dining Room
5.34m x 3.40m (17' 6" x 11' 2")
Bedroom
4m x 3.84m (13' 1" x 12' 7")
Bedroom 2
2.64m x 2.61m (8' 8" x 8' 7")
Foyer
1.20m x 5.50m (3' 11" x 18' 1")
Bath
3.22m x 1.53m (10' 7" x 5' 0")
Kitchen
3.22m x 2.38m (10' 7" x 7' 10")
Balcony
1.33m x 3.36m (4' 4" x 11' 0")
Third Floor
Master Bedroom
7.78m x 3.42m (25' 6" x 11' 3")
Bedroom 4
2.99m x 3.74m (9' 10" x 12' 3")
Hall
2.05m x 1.51m (6' 9" x 4' 11")









































































